ASTM PU40 Crash Rated Removable Bollards
Our ASTM PU40 Crash Rated Removable Bollards are rated to stop up to 5,070 lb. vehicle traveling at 40mph. These bollards can be temporarily removed to gain access and reset securely in place. We can customize to your specifications with a variety of tops and finishes.
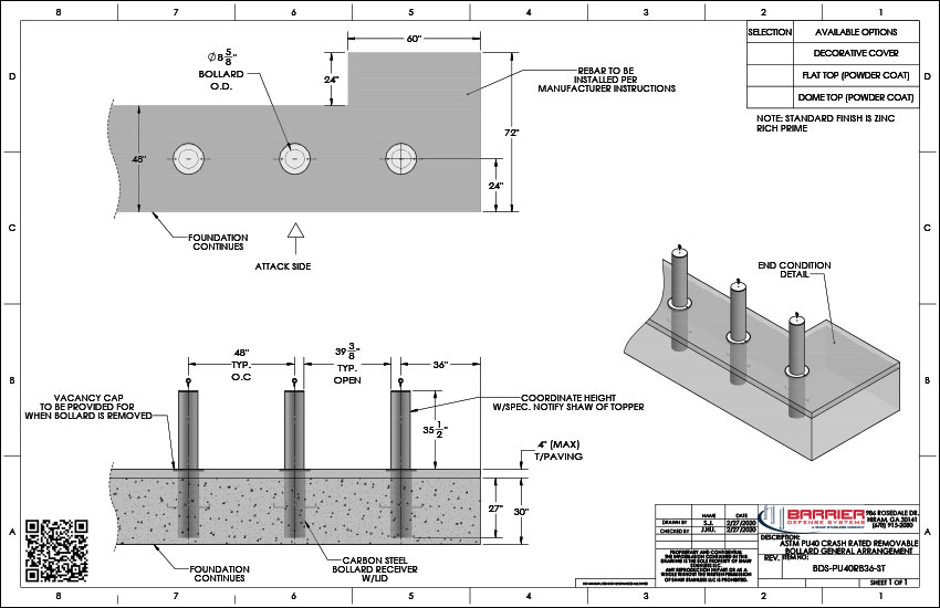
ASTM PU40 Crash Rated Removable Bollards
Stops up to a 5,070 lb. vehicle traveling up to 40 MPH1 meter or less of vehicle penetration (P1)
Minimum 3 Bollard Array (Engineered)
Simply Excavate, Set Bollard / Rebar, & Pour
Quick Installation at Reduced Costs
Follows Turns & Grade Changes
Fixed Bollard Model Available
CSI Specifications
Foundation Requirements: Depth: 30 inches (762 mm), Concrete: 4500 psi (31026.4 kPa) concrete, Rebar: No. 5 bar.
Compliance:ASTM F2656M-18a: PU40 P1, 5,070 lbs (2299.7 kg) at 40 mph (64.37 kph), less than 39.37 inch (1.0 m) penetration. Welding: Conforms with AWS D1.1 standard.
Bollard Height Above Finished Grade: 36 inches (914 mm); pavers or other concrete topper is acceptable up to an additional 4 inches (102 mm). Notify manufacturer of requirement in advance prior to fabrication.
Maximum Bollard Spacing: 48 inches (1219 mm) on center; meeting ADA handicap accessibility provision after decorative covers are installed.
Bollard Tops: Flat Cap, Domed Cap, Custom, Decorative Tops as scheduled and indicated on drawings.
Finish Options: Standard Corrosion Resistant Primer, Hot Dipped Galvanized Bollard Pipe, Exterior Powder Coat Color as scheduled and indicated on drawings, Optional Decorative Cover.
Complete our Bollard Inquiry Form by clicking on the button below to find out how we can accommodate your bollard needs! To speak to a Barrier Defense Systems Bollard Representative call (678) 915-2080 during our business hours.
Bollard Inquiry Form
